Home
Chi siamo
Servizi
Contatti
Vendite
Affitti
Capannoni
Turistici
Prestigio
Cantieri
Ricerca rapida
Codice
Tipologia
Vendite
Affitti
Capannoni
Turistici
Prestigio
Cantieri
Categoria
Qualsiasi
1 locale
2 locali
3 locali
4 o più locali
Appartamento
Attico
Azienda Agricola
Baita
Cantina
Capannone
Casa singola
Castello
Crotto
Dépendance
Duplex
Garage
Hotel
Laboratorio
Loft
Magazzino
Maisonette
Mansarda
Negozio
Porzione di Casa
Porzione Villa
Posto Auto
Posto Barca
Rustico/Casale
Stabile / Palazzo
Tenuta
Terreno Agricolo
Terreno Edificabile
Trullo
Ufficio
Villa
Villa Bifamiliare
Villetta schiera
Città
Tutte
Cermenate (CO)
Como (CO)
Olgiate Comasco (CO)
Oltrona di San Mamette (CO)
Veniano (CO)
Villa Guardia (CO)
Zona
Tutte
Descrizione
Prezzo (da - a)
-
Mq (da - a)
-
Ordine
Inserimento
Codice
Categoria
Città
Zona
Prezzo
Metri quadri
Cerca
10 consigli per vendere casa
Documenti per la vendita
Certificazione Energetica ACE
Metti in vendita un immobile
Affitto a riscatto
Valutazioni Stime Perizie
Entra nel team Logicasa
Logicasa Principi Etici
Richiedi informazioni
* Tutti i campi sono obbligatori
Codice: *
Nominativo: *
Telefono: *
Email: *
Dettagli richiesta: *
Autorizzo il trattamento dei miei dati personali in base Regolamento UE n. 679/2016 -
Privacy Policy
Invia
<< Torna indietro
Tweet
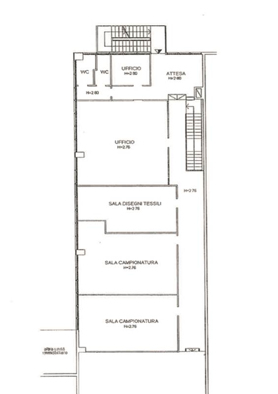
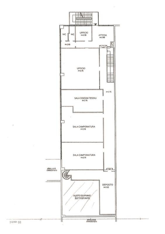
V001302 - produttivo con uffici in vendita
Laboratorio, Ufficio
COMO VIA TENTORIO: Logicasa propone in vendita Laboratorio con Uffici disposto su due livelli, costituito da zona produttiva - magazzino al piano terra e zona amministrativa e uffici al primo piano.
L'immobile ha ingresso indipendente, con accesso anche carrabile al piano terra; i due piani hanno un collegamento interno ma possono essere resi indipendenti avendo un secondo ingresso esterno.
La superficie totale è pari a 750 mq, è compresa nella vendita l'area esterna di pertinenza nella quale è possibile parcheggiare 8/10 auto.
L'altezza della zona produttiva al piano terreno è di circa 3.10 metri, mentre nella zona dell'accesso carraio ha altezza di m 5,80 con una parte soppalcata.
L'immobile si presta anche ad essere frazionato con possibilità di cambio d'uso del piano terra da laboratorio a uffici.
Contattaci per maaggiori informazioni
Prezzo
540.000,00 EUR
Mq
750
Classe
C (314,41 [kWh/m³a])
Locali
5
MAPPA
via Tentorio , Como (CO)
Mantieni impostazioni di default X
Uso dei cookies
Questo sito fa uso di cookies. I nostri cookies (propri) e quelli dei nostri Partners (cookies di terzi) servono per poterti offrire un'esperienza unica con noi. Per questo motivo, insieme ai nostri partners, raccogliamo e processiamo informazioni non sensibili (come l'identificatore del tuo dispositivo o le pagine che visiti).
In qualsiasi momento potrai eliminare, modificare o verificare le informazioni che condividi in
Cookie preference
o nella nostra
Cookie Policy
e
Privacy Policy
.
Necessari
Funzionali
Profilazione
Analitici
Accetta tutti
Rifiuta tutti
Accetta selezionati
Cookie preference