Home
Chi siamo
Servizi
Contatti
Vendite
Affitti
Capannoni
Turistici
Prestigio
Cantieri
Ricerca rapida
Codice
Tipologia
Vendite
Affitti
Capannoni
Turistici
Prestigio
Cantieri
Categoria
Qualsiasi
1 locale
2 locali
3 locali
4 o più locali
Appartamento
Attico
Azienda Agricola
Baita
Cantina
Capannone
Casa singola
Castello
Crotto
Dépendance
Duplex
Garage
Hotel
Laboratorio
Loft
Magazzino
Maisonette
Mansarda
Negozio
Porzione di Casa
Porzione Villa
Posto Auto
Posto Barca
Rustico/Casale
Stabile / Palazzo
Tenuta
Terreno Agricolo
Terreno Edificabile
Trullo
Ufficio
Villa
Villa Bifamiliare
Villetta schiera
Città
Tutte
Cermenate (CO)
Como (CO)
Guanzate (CO)
Olgiate Comasco (CO)
Oltrona di San Mamette (CO)
Tavernerio (CO)
Veniano (CO)
Villa Guardia (CO)
Zona
Tutte
Descrizione
Prezzo (da - a)
-
Mq (da - a)
-
Ordine
Inserimento
Codice
Categoria
Città
Zona
Prezzo
Metri quadri
Cerca
10 consigli per vendere casa
Documenti per la vendita
Certificazione Energetica ACE
Metti in vendita un immobile
Affitto a riscatto
Valutazioni Stime Perizie
Entra nel team Logicasa
Logicasa Principi Etici
Richiedi informazioni
* Tutti i campi sono obbligatori
Codice: *
Nominativo: *
Telefono: *
Email: *
Dettagli richiesta: *
Autorizzo il trattamento dei miei dati personali in base Regolamento UE n. 679/2016 -
Privacy Policy
Invia
<< Torna indietro
Tweet
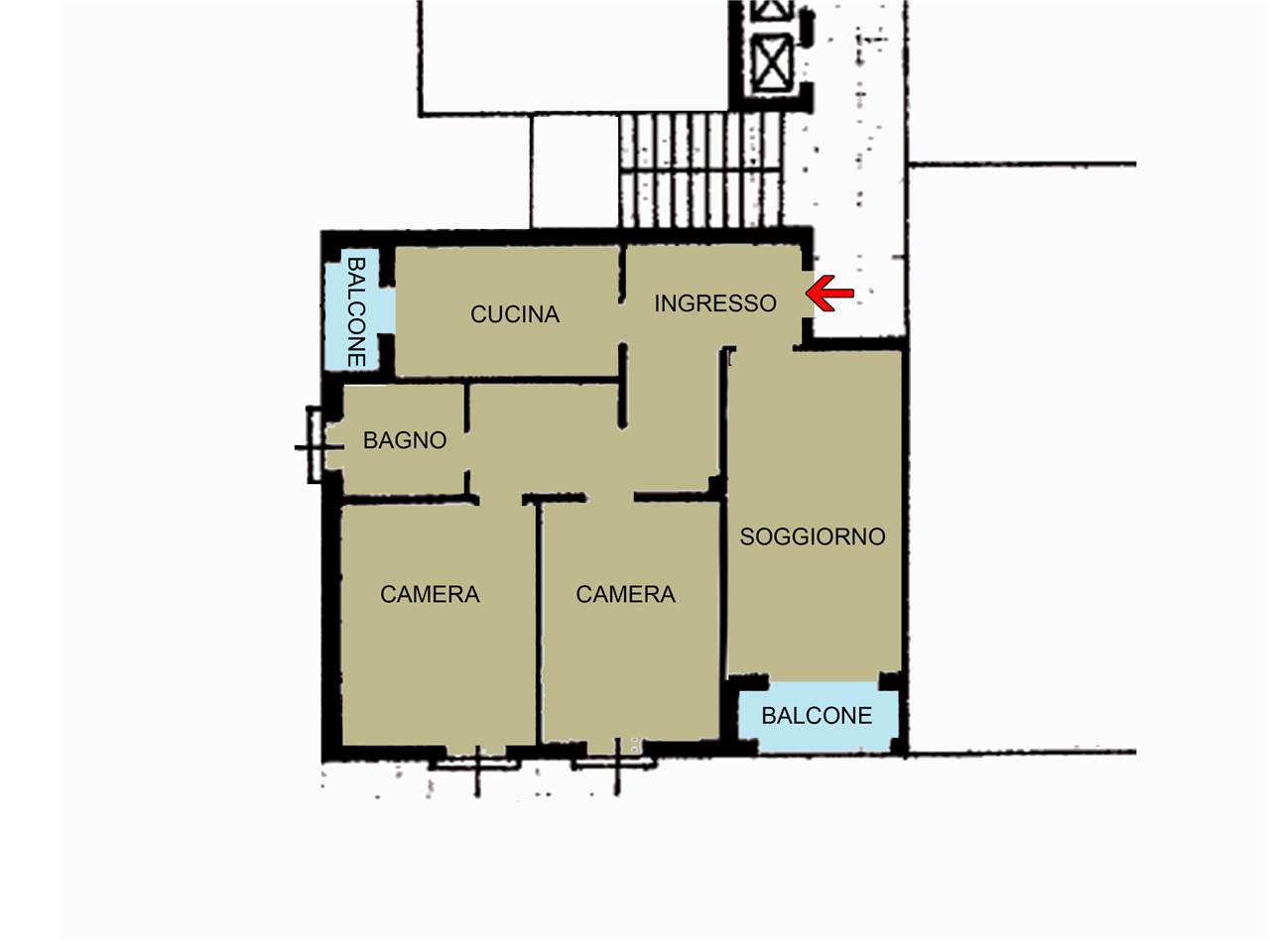
V001283 - Como Borghi Vendesi Luminoso Trilocale Piano Alto
3 locali
Como Borghi, Via Mentana, in posizione strategica con tutti i servizi per il cittadino, vicino alla stazione ferroviaria Como Borghi, a supermercati, istituti scolastici, farmacie, posta, etc. proponiamo in vendita in stabile signorile con portineria e ampio giardino condominiale, luminoso appartamento sito al 4°piano con ascensore. Internamente l'immobile si presenta in buone condizioni generali con serramenti in PVC con doppi vetri bianchi e pavimenti in parquet e ceramica; la disposizione interna è suddivisa da: soggiorno con ampio balcone coperto, cucina abitabile con balcone di servizio, due camere da letto, bagno con finestra e cantina al piano seminterrato.
Nell'ampio cortile c'è la possibilità di posteggiare biciclette.
Se desideri vendere o permutare il tuo immobile contattaci allo 031.241193, lo staff Logicasa offre il servizio di analisi di mercato e valutazione gratuita dell'immobile da vendere, inoltre avrai il supporto del Team Logicasa, professionisti a Como dal 1985, potrai così realizzare la tua vendita velocemente e alle migliori condizioni di mercato, anche con permuta.
Inoltre se ti interessa acquistare tramite mutuo, avrai a disposizione il nostro consulente del credito che ti potrà fornire tutte le informazioni e un preventivo personalizzato.
Prezzo
380.000,00 EUR
Mq
99
Classe
D
Locali
3
Camere
2
Bagni
1
Mq Balcone
6
Stato Immobile
Buono
Grado
Signorile
Posizione
Centro
Panorama
Vista Aperta
Orientamento
Ovest
Lati Liberi
2
Giardino
Comune
Tipo Soggiorno
Salone
Tipo Cucina
Abitabile
Riscaldamento
Centralizzato
Tipo Riscaldam.
Termo valvole
Tipo Impianto
Radiatori
Fonte Energetica
Metano
Acqua Calda
Centralizzata
Infissi
PVC Doppio Vetro
Serramenti
Ottimo
Persiana
Tapparella PVC
Pavim. Giorno
Parquet
Pavim. Notte
Parquet
Pavim. Cucina
Ceramica
Pavim. Bagno
Ceramica
Cantina - Solaio
Cantina
Accessori
Armadio a muro, Ascensore, Doppi Vetri, Porta Blindata, Portineria/Custode, Video Citofono
MAPPA
via Mentana 23, Como (CO)
Mantieni impostazioni di default X
Uso dei cookies
Questo sito fa uso di cookies. I nostri cookies (propri) e quelli dei nostri Partners (cookies di terzi) servono per poterti offrire un'esperienza unica con noi. Per questo motivo, insieme ai nostri partners, raccogliamo e processiamo informazioni non sensibili (come l'identificatore del tuo dispositivo o le pagine che visiti).
In qualsiasi momento potrai eliminare, modificare o verificare le informazioni che condividi in
Cookie preference
o nella nostra
Cookie Policy
e
Privacy Policy
.
Necessari
Funzionali
Profilazione
Analitici
Accetta tutti
Rifiuta tutti
Accetta selezionati
Cookie preference